池袋エリア新着物件情報ブログ
2022.3.11
板橋水商売賃貸情報♪MS板橋EAST
ペット可デザイナーズマンション(^_-)-☆
池袋エリアでお勤めの水商売の方におススメです!
《交通》
JR埼京線「板橋」駅 徒歩3分
都営三田線「新板橋」駅 徒歩9分
《募集条件》
敷金0ヶ月・礼金1ヶ月
お家賃:85,000円~
共益費:20,000円~
《所在地》
豊島区上池袋4-43-12
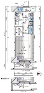
《間取り》
1K / 25.66m2~
《建築年月》
2019年05月
《物件画像》






★築浅ペット可不動産情報満載★
水商売賃貸情報『みずべや』水商売のお部屋(^^♪水商売・風俗・ナイトワーク専門賃貸不動産ににお任せください!秋葉原駅はもちろん!新宿・歌舞伎町・渋谷・池袋・六本木・麻布・銀座・赤坂・恵比寿・上野・鶯谷・錦糸町・吉祥寺の繁華街どこでもご紹介可能♪水商売・ナイトワーク・キャバクラ・ホスト・風俗嬢・AV嬢・ボーイ♪お部屋探しは水商売風俗賃貸のプロ『みずべや』♪
★テレビ出演★
TBS 有吉ジャポン(2019年3月22日放送)
★池袋店★
【住所】豊島区池袋2-4-2 YKビル1F
【TEL】03-6907-2660

★新宿本店★
【住所】新宿区西新宿7-12-3 小島ビル3F
【TEL】03-6279-2032

★歌舞伎町あずま通り店★
【住所】新宿区歌舞伎町1-8-3 良川ビル2F
【TEL】03-6205-5732

